House Plan

4-Bedroom Cabin

4-Bedroom Cabin

Specifications

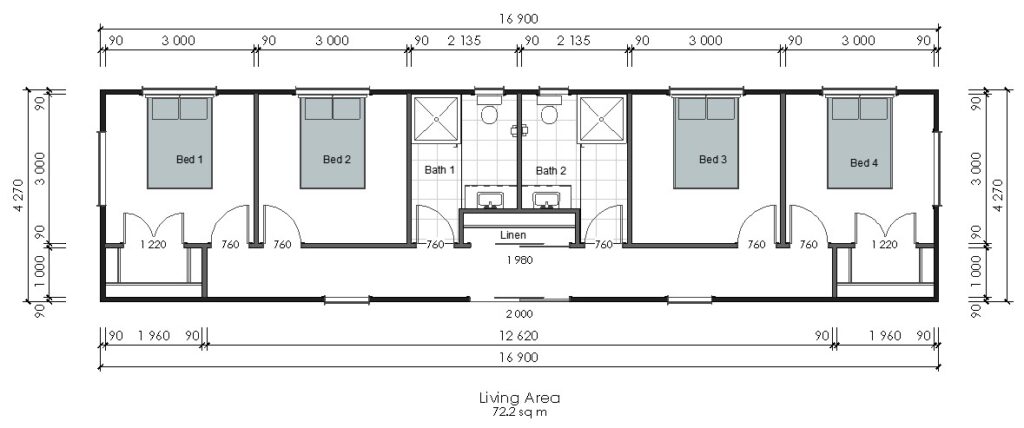
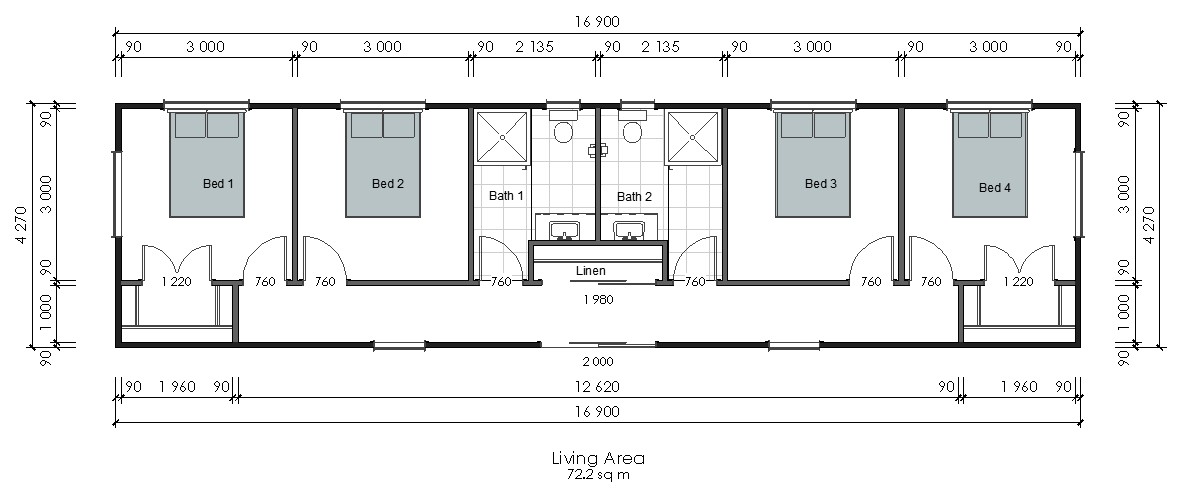
4 Bedrooms

2 Bathrooms

72 m² FLOOR AREA

10.4m x 7m

4-8 People

$228,000

4-Bedroom Cabin

Our team at Modular Spaces are leading the way building high-quality, cost-effective cottages/minor dwellings on foundations. Our prefab cabins are specially designed units, which incorporates strength, efficiency and style all in one. Ideal as a home studio or sleep out, these cabins are versatile and durable, made tough to handle NZ’s unique climate. Modular Spaces Cottages comply with MBIE Building Act 2004 and all build codes including Revised Insulation R Rating May 2023

ENJOY ALL THE FEATURES

  • Single Level Cabin
  • Double Glazed Windows
  • Plumbing & Electrical to Full NZ Certification
  • Full MBIE Build code 2004/2023 for New Zealand
  • Gable or mono pitch roof options
  • Customisable internal layout
  • Delivery available anywhere in the North Island

Upgrades available

  • 1.8m Kitchenette (no appliances)    –   $ 5,700
  • 2.5kw Heat Pump                                     –   $ 2,800
  • Melamine Wardrobe Organiser       –   $ 2,200

Choose from a 1 bedroom prefab cottage, two or four-bedroom options, all with a clever use of space, open-concept living, dining, and kitchen, and a well-appointed bathroom-laundry. The shell only Cottages basic plan gives you the option of finishing the exterior and interior cabinetry, furnishings, appliances, and fittings to your standards. All designs include contemporary double glazed windows, a double sliding front door, and your choice of cladding. You’ll appreciate the efficient use of space and the abundance of natural light provided by the mono pitch or gable roof.

Floor Plan

Standard Inclusions

  • Single Level Cabin
  • Double Glazed Windows
  • Plumbing & Electrical to Full NZ Certification
  • Full MBIE Build code 2004/2023 for New Zealand
  • Gable or mono pitch roof options
  • Customisable internal layout
  • Delivery available anywhere in the North Island

Upgrades available

  • 1.8m Kitchenette (no appliances)    –   $ 5,700
  • 2.5kw Heat Pump                                     –   $ 2,800
  • Melamine Wardrobe Organiser       –   $ 2,200

Choose from a 1 bedroom prefab cottage, two or four-bedroom options, all with a clever use of space, open-concept living, dining, and kitchen, and a well-appointed bathroom-laundry. The shell only Cottages basic plan gives you the option of finishing the exterior and interior cabinetry, furnishings, appliances, and fittings to your standards. All designs include contemporary double glazed windows, a double sliding front door, and your choice of cladding. You’ll appreciate the efficient use of space and the abundance of natural light provided by the mono pitch or gable roof.